シーサイドビュー西ノ庄・オーナーチェンジ・59098
550万円
南海加太線「西ノ庄」駅徒歩5分
南海加太線「二里ヶ浜」駅徒歩9分
南海加太線「八幡前」駅徒歩21分
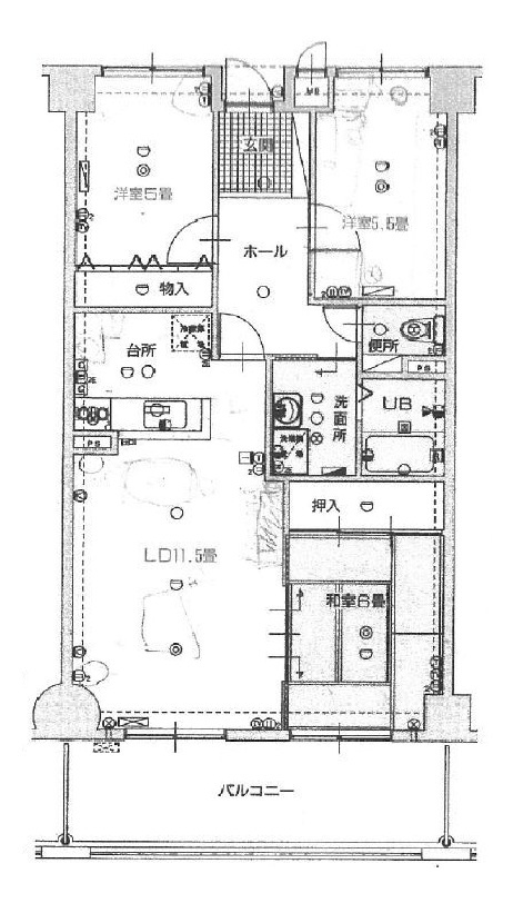
【間取り】
- 価格
- 550万円
- 利回り
- 表面10.90%
- 土地面積(坪数)
- -(-)
- 築年月
- 1994年10月(築31年)
- 間取り
- 3LDK
- 専有面積
- 71.64㎡
- 所在階 / 階建て
- 4階/7階建
-
エレベーター
- 価格
- 550万円
- 利回り
- 表面10.90%
- 修繕積立金
- -
- 修繕積立基金
- -
- 間取り / 詳細
- 3LDK
- 向き
- 南西
- 専有面積
- 71.64㎡
- 土地面積(坪数)
- -(-)
- その他面積
- -
-
- - 土地権利
- 所有権
- 国土法届出要否
- 不要
- 接道状況
- -
- 用途地域
- 第一種住居
- 地勢
- -
- 都市計画
- -
- 建物構造
- 鉄筋コンクリート
- 所在階 / 階建て
- 4階 / 7階建
- 管理方式 /
管理人 - 自主管理 / -
- 築年月
- 1994年10月(築31年)
- 取引態様
- 一般媒介
- 現況
- 賃貸中
- 引渡し
- 相談
- 管理会社 /
管理組合有無 - - / -
- 取引条件の
有効期限 - 2026年04月27日
- 設備条件
-
- プロパンガス / 公営水道 / 公共下水 / エレベーター / 電気有
- 設備(その他)
-
-
-
- 物件番号
- 100426475
- 管理コード
- 59098
- 情報更新日
- 2026年04月13日
- 次回更新予定日
- 2026年04月27日
- 取扱会社
-
- アズマハウス株式会社
- 和歌山県和歌山市黒田1丁目2-17 アズマハウスビル 3F
- TEL:0120-801-406
- 国土交通大臣 (3) 第8219号
- (社)全国宅地建物取引業協会会員
(社)全国宅地建物取引業保証協会会員
(社)和歌山県宅地建物取引協会会員
(一社)大阪府宅地建物取引協会会員
(社)近畿地区不動産公正取引協議会加盟店
- 備考
- 現状:家賃50,000円/月.表面利回り10.9%
※R7年度固定資産税約84,100円
※先一有り
※図面と現況が相違する場合は、現況優先とさせて頂きます。 -
駅
西ノ庄駅
453m(6分)
-
小学校
西脇小学校
818m(11分)
-
郵便局
和歌山西庄中郵便局
1048m(14分)
-
銀行
きのくに信用金庫 河西支店
1537m(20分)
-
中学校
西脇中学校
1603m(21分)
-
コンビニエンスストア
ローソン 和歌山磯ノ浦店
2109m(27分)
-
市役所・区役所
和歌山市役所 木ノ本連絡所
2330m(30分)
-
保育園
木ノ本こども園
2339m(30分)
-
ドラッグストア
ツルハドラッグ 和歌山木ノ本店
2587m(33分)
- 月々の支払額
- 円
- 購入希望物件価格
-
万円
- 頭金
-
万円
- 金利
-
%
- 返済額(ボーナス1回分)
-
万円
- 返済期間
-
年
- PER(収益力)
- 倍
- 想定賃料(1ヵ月)
-
万円
- 利回り
-
%
物件の特徴
セールスポイント
オーナーチェンジ物件、表面利回り10.9%!
3LDK 南向きバルコニーのお部屋で日当たり良好!
担当者のコメント
基本情報
設備条件
その他
周辺施設
支払いシミュレーション
※実際の金額と異なる場合があります。
※ボーナスは自動で年2回分で計算されます。
想定賃料・利回り・PER
※実際と異なる場合があります。
近隣の物件
よく見られている物件
シーサイドビュー西ノ庄・オーナーチェンジ・59098
550万円
-
3LDK(71.64㎡)

中井 瑛一朗
元ハウスメーカーやMRの営業経験、ファイナンシャルプランニングの観点から幅広く納得のいく真心アドバイスを心掛け、お客様のマイホーム、資産形成のお手伝いをしていきたいと日々精進し、喜びを共感出来ればと考えています。
お客様の資産や家計のことから不動産のコンサルティングまで何なりとお気軽にご相談ください。
大好きな地元和歌山を中心に頑張っています。