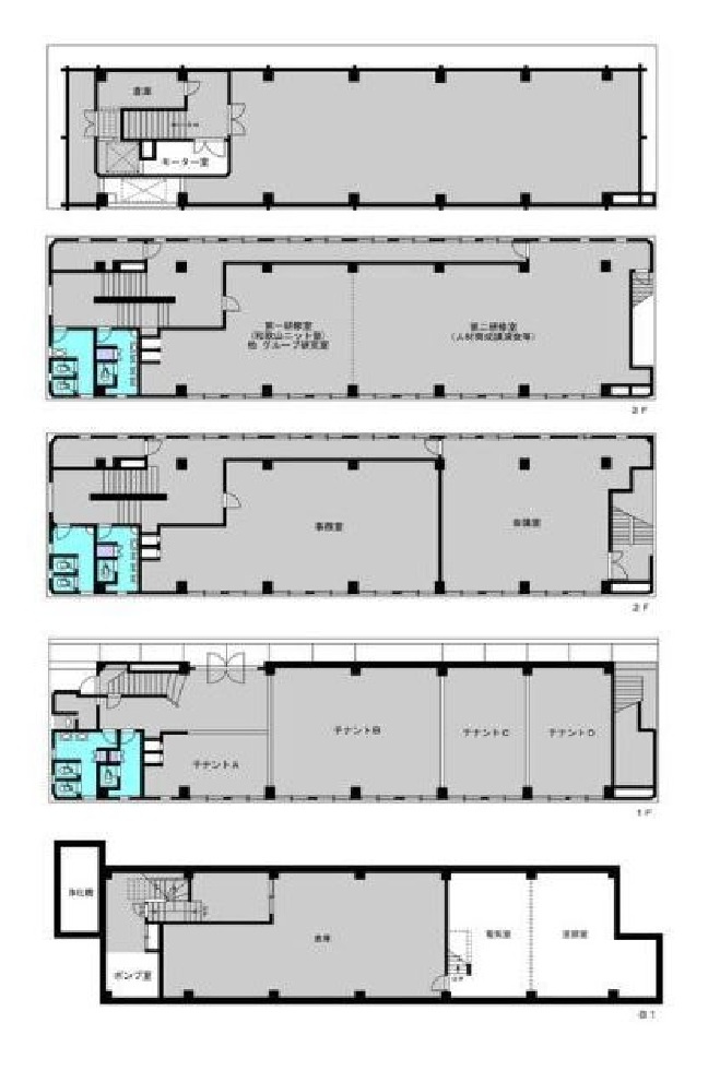
和歌山市畑屋敷千体仏丁・テナントビル・71566の基本情報
- 物件名
- 和歌山市畑屋敷千体仏丁・テナントビル・71566
- 価格
- 3,980万円
- 建物面積
- 556.49㎡
- 築年月
- 1991年11月(築34年)
- 総戸数
- -
和歌山市畑屋敷千体仏丁・テナントビル・71566の詳細情報
- 設備条件
-
- 設備(その他)
-
-
-
- 駐車場/月額
- -/-
- 土地権利
- 所有権
- 国土法届出
- 不要
- 用途地域
- 商業
- 戸数
- - / -
- 管理形態
- -
- 管理員の勤務形態
- -
- 管理会社
- -
- 取引態様
- 仲介
- 引渡し
- 相談
和歌山市畑屋敷千体仏丁・テナントビル・71566で募集中の物件
周辺施設
-
コンビニエンスストア
セブンイレブン向之芝店
268m(4分)
-
ドラッグストア
ツルハドラッグ 和歌山中之島店
305m(4分)
-
コンビニエンスストア
ファミリーマート和歌山中之島店
483m(7分)
-
小学校
大新小学校
508m(7分)
-
郵便局
和歌山中之島郵便局
571m(8分)
-
スーパー
業務スーパー鈴丸店
590m(8分)
-
中学校
城東中学校
884m(12分)
-
銀行
きのくに信用金庫本店
1004m(13分)
-
スーパー
オークワ和歌山中之島店
1040m(13分)
-
駅
紀和駅
1126m(15分)
-
デパート
(株)近鉄百貨店 和歌山店
1214m(16分)
-
幼稚園
和歌山信愛女子短大附属幼稚園
1294m(17分)
-
市役所・区役所
和歌山市役所
1738m(22分)
-
家電製品
ケーズデンキ和歌山店
2019m(26分)
-
保育園
宮保育所
2306m(29分)
-
都道府県機関
和歌山県庁
2519m(32分)
近隣の物件
よく見られている物件
和歌山市畑屋敷千体仏丁・テナントビル・71566
