【外観】
- 専有面積
- 68.35㎡
- 築年月
- 1995年10月(築30年)
- 管理費
- 10,300円
- 修繕積立金
- 11,790円
- 修繕積立基金
- -
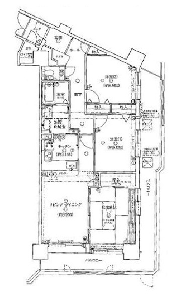
- 間取り / 詳細
- 3LDK
- 向き
- -
- 専有面積
- 68.35㎡
- バルコニー面積
- -
- その他面積
- -
-
- - 所在階 / 階建て
- 5階 / 14階建
- 建物構造
- 鉄骨鉄筋コンクリート
- 築年月
- 1995年10月(築30年)
- 種別
- 中古マンション
- 駐車場 / 月額
- 空有 / 9,200円 駐車場代:令和7年9月時点
- 土地権利
- 所有権
- 土地
(敷金 / 保証金) - - / -
- 国土法届出要否
- 不要
- 接道状況
- -
- 用途地域
- 無指定
- 地勢
- -
- 都市計画
- 非線引区域
- 現況
- 居住中
- 引渡し
- 相談
- 取引態様
- 仲介
- 棟総戸数
- -
- 管理形態
- 管理会社に全部委託
- 管理会社 /
管理組合有無 - グローバルコミュニティ / -
- 取引条件の
有効期限 - 2026年04月29日
- 設備条件
-
- 設備(その他)
-
-
-
- 物件番号
- 99352483
- 管理コード
- 34409
- 建築確認番号
- -
- 情報更新日
- 2026年04月15日
- 次回更新予定日
- 2026年04月29日
- 取扱会社
-
- アズマハウス株式会社
- 和歌山県和歌山市黒田1丁目2-17 アズマハウスビル 3F
- TEL:0120-801-406
- 国土交通大臣 (3) 第8219号
- (社)全国宅地建物取引業協会会員
(社)全国宅地建物取引業保証協会会員
(社)和歌山県宅地建物取引協会会員
(一社)大阪府宅地建物取引協会会員
(社)近畿地区不動産公正取引協議会加盟店
-
コンビニエンスストア
ローソン 岩出西安上店
801m(11分)
-
小学校
山崎北小学校
860m(11分)
-
銀行
紀陽銀行 紀泉台出張所
877m(11分)
-
郵便局
岩出中黒郵便局
1047m(14分)
-
保育園
認定こども園山崎北こども園
1197m(15分)
-
スーパー
業務スーパー 岩出店
1380m(18分)
-
ドラッグストア
ウエルシア岩出中黒店
1641m(21分)
-
中学校
岩出中学校
2421m(31分)
- 月々の支払額
- 円
- 購入希望物件価格
-
万円
- 頭金
-
万円
- 金利
-
%
- 返済額(ボーナス1回分)
-
万円
- 返済期間
-
年
基本情報
設備条件
その他
サンライズマンション岩出Ⅷの他の部屋
周辺施設
支払いシミュレーション
※実際の金額と異なる場合があります。
※ボーナスは自動で年2回分で計算されます。
近隣の物件
よく見られている物件
サンライズマンション岩出Ⅷ
590万円
10,300円
3LDK(68.35㎡)
