/
【外観】
- 価格
- 1,100万円
- 間取り
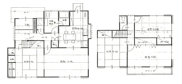
- 5DK
- 土地面積
- 237.97㎡
- 建物面積
- 127.51㎡
- 築年月
- 1990年5月(築35年)
- 販売戸数
- -
- 総戸数
- -
- 間取り / 詳細
- 5DK
- 向き
- -
- 建物面積(坪数)
- 127.51㎡(38.57坪)
- 土地面積(坪数)
- 237.97㎡(71.98坪)
- 建ぺい率 /
容積率 - 40%/80%
- 築年月
- 1990年5月(築35年)
- 駐車場 / 月額
- 有 / 0円
- 土地権利
- 所有権
- 土地
(敷金 / 保証金) - - / -
- 建物構造
- 木造 / 2階建
- 傾斜地部分面積
- -
- 路地状敷地
- -
- 私道負担面積
- -
- セットバック
- 記載なし
- 高圧線下面積
- -
- 施工会社
- -
- 用途地域
- 第一種低層住居専用
- 地目 / 地勢
- 宅地 / 平坦
- 接道状況
- 一方(北 5.8m 間口 14.0m)
- 国土法届出要否
- 不要
- 都市計画
- 非線引区域
- 総区画数 /
販売区画数 - -/-
- 現況
- 空家
- その他
法令上の制限 - -
- 取引態様
- 一般媒介
- 引渡し
- 相談
- 取引条件の
有効期限 - 2026年04月27日
- 設備条件
-
- プロパンガス / 公営水道 / 公共下水 / 電気有
- 設備(その他)
-
-
-
- 物件番号
- 99755109
- 管理コード
- 54724
- 建築確認番号
- -
- 情報更新日
- 2026年04月13日
- 次回更新予定日
- 2026年04月27日
- 取扱会社
-
- アズマハウス株式会社
- 和歌山県和歌山市黒田1丁目2-17 アズマハウスビル 3F
- TEL:0120-801-406
- 国土交通大臣 (3) 第8219号
- (社)全国宅地建物取引業協会会員
(社)全国宅地建物取引業保証協会会員
(社)和歌山県宅地建物取引協会会員
(一社)大阪府宅地建物取引協会会員
(社)近畿地区不動産公正取引協議会加盟店
- 備考
- ※現状有姿渡し,
※給湯器・インターホン交換要
※先一有
※売主は建物診断調査を行いません
※図面と現況が相違する場合は、現況優先とさせて頂きます -
中学校
紀見東中学校
1152m(15分)
-
郵便局
橋本城山台郵便局
1196m(15分)
-
小学校
城山小学校
1203m(16分)
- 月々の支払額
- 円
- 購入希望物件価格
-
万円
- 頭金
-
万円
- 金利
-
%
- 返済額(ボーナス1回分)
-
万円
- 返済期間
-
年
セールスポイント
5DKの広々としたお家 カーポート付!
南に面したお庭でガーデニングも可能です!
日当たり、風通し良好の閑静な住宅地!
基本情報
設備条件
その他
周辺施設
支払いシミュレーション
※実際の金額と異なる場合があります。
※ボーナスは自動で年2回分で計算されます。
近隣の物件
よく見られている物件
橋本市城山台4丁目・中古戸建・54724
1,100万円
-
5DK(127.51㎡)
