和歌山市善明寺・中古戸建・116642の基本情報
- 物件名
- 和歌山市善明寺・中古戸建・116642
- 価格
- 1,780万円
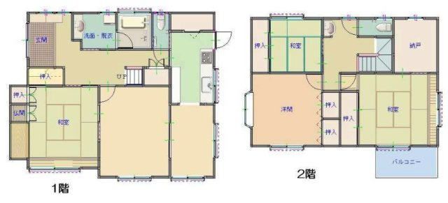
- 建物面積
- 139.11㎡
- 土地面積
- 50.14坪(165.78㎡)
- 築年月
- 1999年2月(築27年)
- 総戸数
- -
和歌山市善明寺・中古戸建・116642の詳細情報
- 設備条件
-
- 設備(その他)
-
-
-
- 駐車場/月額
- -/-
- 土地権利
- 所有権
- 国土法届出
- 不要
- 用途地域
- 第一種低層住居専用
- 取引態様
- 仲介
- 引渡し
- 相談
和歌山市善明寺・中古戸建・116642で募集中の物件
周辺施設
-
中学校
楠見中学校
336m(5分)
-
保育園
のぞみ保育園
650m(9分)
-
コンビニエンスストア
ファミリーマート 和歌山善明寺店
929m(12分)
-
ドラッグストア
ジップドラッグ 善明寺店
1269m(16分)
-
小学校
楠見東小学校
1301m(17分)
-
ディスカウントショップ
ディオ 和歌山北店
1317m(17分)
-
スーパー
オークワ オーストリート和歌山北バイパス店
1554m(20分)
-
銀行
きのくに信用金庫 楠見支店
1630m(21分)
-
総合病院
中江病院
1632m(21分)
-
市役所・区役所
和歌山市役所 楠見連絡所
1653m(21分)
-
郵便局
和歌山楠見中郵便局
1740m(22分)
-
公園
園部公園
1984m(25分)
-
駅
紀ノ川駅
2375m(30分)
近隣の物件
よく見られている物件
和歌山市善明寺・中古戸建・116642
